Eladó családi ház Sobor 39 900 000 Ft

Leírás


Sobor, a nyugalom szigete, ahol mindig csend van és madárcsicsergés, ahová a német nyugdíjasok is előszeretettel költöznek.

 

Megvételre kínálok Soboron, Győrtől 30, Csornától 15 perces autóútra egy 79nm-es teljeskörűen felújított családi házat.

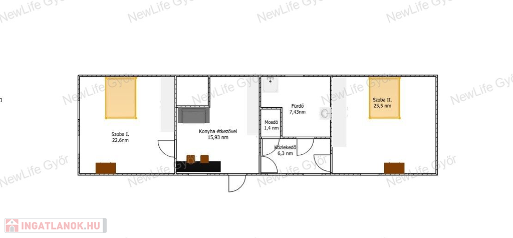
A házba belépve egy amerikai konyhás nappalit találunk, mely konyhabútorral és gépekkel felszerelt. Innen bara jutunk el az egyik hálószobába, mely utcafronti. A konyhából a másik irányba indulva egy folyosó található, innen nyílik a mosdó és a fürdőszoba, valamint a másik lakószoba.

 

A házban a fűtés hűtő-fűtő klímával megoldott, de lehetőség van kályha kialakítására is.

A melegvizet villanybojler biztosítja.

 

A gáz is könnyen bevezethető az ház előtt, az utcán található.

 

A ház teljeskörű felújításon esett keresztül új tetőt, szigetelést, új nyílászárókat kapott.

 

A telek 1100 nm-es, melyen garázs és melléképület található. A kertben fúrt kút és sziklakert is van. Valamint a telek körbekerített, a bejutás szép, kovácsoltvas jellegű kapun keresztül lehetséges.

A szomszédok csendesek.

 

Soboron két kisbolt, orvosi rendelő található, de könnyen elérhető Pápa, Csorna és Győr is. A településen az Audis busz megáll.

 

Ha szeretné megtekinteni az ingatlant, keressen bizalommal!

Családi ház részletei

Ár: 39 900 000 Ft
Méret: 79 négyzetméter
Azonosító: 11541004
Irodai azonosító: 718800425
Telek: 1100 négyzetméter
Ingatlan állapota: Kitűnő
Jelleg: családi ház
Építőanyag: Kérdezzen rá a hirdetőtől »